台南市東區透天買賣

台南透天,台南透天出售,出售台南透天

台南市東區透天買賣|台南房屋柯辣媽東區崇善商圈孝親裝潢車庫透天

台南房屋柯辣媽東區崇善商圈孝親裝潢車庫透天
列印
  • 售1980萬
    1. 類型:透天
    2. 總登記坪數:
    3. 每坪單價:
    4. 地址:台南市東區崇善十一街55巷
    1. (煩請告知聯絡人,您是在House-Info房屋網看到廣告,感恩幫忙)
    2. 0936-816-212
    1. 市話:
    2. 公司名稱:
    3. 公司地址:
    台南房屋柯辣媽東區崇善商圈孝親裝潢車庫透天-QR CODE 我要留言
物件介紹
詳細資料
銷售狀態
帶看中
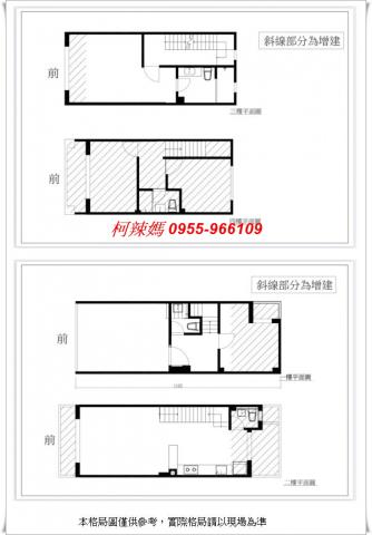
格局
4房,2廳,4衛,4陽台,4廚房
屋齡
46年
車位
室內車庫
座向
朝南
所在樓層
3
電梯
未知
瀏覽人次
79人次
坪數說明
建物登記總坪數
33.39
主建物
33.39
土地登記總坪數
17.84
特色描述
1.整棟重新整理+增建,實際使用

2.空間大幅提升,格局方正,動線佳

3.一樓孝親房+有天井+二樓延伸露台

4.屋內保有自然光,乾爽不潮溼

5.仁和商圈,生活機能完整,採買便利

6.崇善商圈近學區,外食方便,診所林立,生活便利滿分

WWW.大台南房屋土地聯賣網.tw

「以上權狀資訊如有記載錯誤,一律依騰本登記資料為準。」

期待眼光獨到的您.前來鑑賞 如欲看屋

請來電:先生0936-816-212.柯辣媽0955-966-109

證號(100)登字第181516.證號(93)登字第037460

LINE搜尋ID 0936816212.ID0955966109

誠昱不動產仲介有限公司

*上架資料僅於委託銷售契約期間內有效.若因契約期滿.成交等情形而無法銷售等事由者.請務必與承辦人員再次確認*

 
東區透天-0
東區透天-0
東區透天-1
東區透天-1
東區透天-2
東區透天-2
東區透天-3
東區透天-3
東區透天-4
東區透天-4
東區透天-5
東區透天-5
東區透天-6
東區透天-6
東區透天-7
東區透天-7
東區透天-8
東區透天-8
東區透天-9
東區透天-9
東區透天-10
東區透天-10
東區透天-11
東區透天-11
東區透天-12
東區透天-12
東區透天-13
東區透天-13
東區透天-14
東區透天-14
物件留言
請注意,如果您詢問的內容與物件不相符合或是廣告,經過審核,系統將會直接刪除您的發問內容
等待圖示
免責聲明:House-Info房屋網平台系統為租用式開放房屋買賣網站建置平台,僅提供會員查詢-台南市,東區,透天-等房屋資訊參考,並不涉入任何諮詢、交易。 物件(服務)聯絡人公佈的資訊、文字、照片、圖形、產權、廣告內容、或其他資料若有不實或違法情事,或與客戶聯絡交易過程中若衍生民事或刑事等法律問題,皆與House-Info房屋網站無關,所有商標、文章、名稱等版權,皆歸屬原著作者所有!