台南市仁德區透天

台南市仁德區透天|台南房屋柯辣媽台糖86虎山新建農機具室

台南房屋柯辣媽台糖86虎山新建農機具室
列印
  • 售1680萬
    1. 類型:透天_倉庫_一樓
    2. 總登記坪數:
    3. 每坪單價:
    4. 地址:台南市仁德區田厝二街
    1. (煩請告知聯絡人,您是在House-Info房屋網看到廣告,感恩幫忙)
    2. 0936-816-212
    1. 市話:
    2. 公司名稱:
    3. 公司地址:
    台南房屋柯辣媽台糖86虎山新建農機具室-QR CODE 我要留言
物件介紹
詳細資料
銷售狀態
帶看中
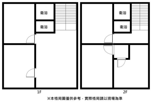
格局
5房,1廳,4衛
屋齡
1年
座向
朝西
所在樓層
1樓
電梯
未知
面前道路
約9米路
瀏覽人次
146人次
坪數說明
建物登記總坪數
26.28
主建物
26.28
土地登記總坪數
117.55
特色描述
1.縱貫線轉文賢路一段入仁德十鼓文創園區

2.鐵路旁道上86橋下南道至田厝街

3.台糖九米道.文賢里22米寬地大樓高七米

4.仁德虎山段新建合法的農機具室權狀

5.買房子有附2台農用的耕耘機

WWW.大台南房屋土地聯賣網.tw

「以上權狀資訊如有記載錯誤,一律依騰本登記資料為準。」

期待眼光獨到的您.前來鑑賞 如欲看屋

請找:林先生或柯辣媽

LINE搜尋林先生ID 0936816212.柯小姐ID0955966109

證號(100)登字第181516.證號(93)登字第037460

誠昱不動產仲介有限公司

 
台南仁德透天-0
台南仁德透天-0
台南仁德透天-1
台南仁德透天-1
台南仁德透天-2
台南仁德透天-2
台南仁德透天-3
台南仁德透天-3
台南仁德透天-4
台南仁德透天-4
台南仁德透天-5
台南仁德透天-5
台南仁德透天-6
台南仁德透天-6
台南仁德透天-7
台南仁德透天-7
台南仁德透天-8
台南仁德透天-8
台南仁德透天-9
台南仁德透天-9
台南仁德透天-10
台南仁德透天-10
台南仁德透天-11
台南仁德透天-11
台南仁德透天-12
台南仁德透天-12
台南仁德透天-13
台南仁德透天-13
台南仁德透天-14
台南仁德透天-14
物件留言
請注意,如果您詢問的內容與物件不相符合或是廣告,經過審核,系統將會直接刪除您的發問內容
等待圖示
相似物件
免責聲明:House-Info房屋網平台系統為租用式開放房屋買賣網站建置平台,僅提供會員查詢-台南市,仁德區,透天-等房屋資訊參考,並不涉入任何諮詢、交易。 物件(服務)聯絡人公佈的資訊、文字、照片、圖形、產權、廣告內容、或其他資料若有不實或違法情事,或與客戶聯絡交易過程中若衍生民事或刑事等法律問題,皆與House-Info房屋網站無關,所有商標、文章、名稱等版權,皆歸屬原著作者所有!